Shophouse Vinhomes Riverside The Harmony

Từ năm 2016 trở lại đây, dòng sản phẩm shophouse đang ngày càng được ưa chuộng, bởi tích hợp cả 2 chức năng: vừa kinh doanh, vừa để ở, phù hợp với lối sống người dân Việt. Đặc biệt tại Vinhomes The Harmony, shophouse có sức hút vô cùng lớn, bởi khả năng kinh doanh vượt trội và chủ sở hữu được sống trong một môi trường trong lành, được tận hưởng mọi tiện ích dịch vụ đẳng cấp của khu đô thị.

Tổng quan shophouse Vinhomes Riverside The Harmony

Quy mô phát triển: 57 căn liền kề

  • Shophouse Phong Lan: 19 căn
  • Shophouse Hướng Dương: 10 căn
  • Shophouse Nguyệt Quế: 28 căn

Phong cách xây dựng: Pháp, Đông Dương, Hy Lạp

Diện tích liền kề: 165 – 218 m2

Mật độ xây dựng: 45 – 55%

Chiều cao: 3.5 tầng

Hình thức sở hữu: Sổ đỏ lâu dài

Tiềm năng kinh doanh vượt trội, lợi nhuận lên tới 8 – 10%/năm

Có thể thấy sức hút lớn nhất của shophouse The Harmony đến từ khả năng khai thác kinh doanh vượt trội, do không gian “indoor” (không gian trong nhà) & “outdoor” (sân vườn & vỉa hè) được thiết kế ưu việt cũng như chủ sở hữu hoàn toàn tận dụng được lượng cư dân “khổng lồ” tại cả 2 khu đô thị Vinhomes Riverside và Vinhomes Riverside The Harmony. Đây đều là những khách hàng cao cấp, sẵn sàng trả giá cao cho những sản phẩm dịch vụ, miễn sao chất lượng phải thật tốt. Được biết tại khu đô thị Vinhomes Gardenia Mỹ Đình thuộc cùng chủ đầu tư Vingroup, dòng sản phẩm shophouse khá thành công, chủ sở hữu có thể kinh doanh, cho thuê hoặc bán lại sau một vài năm với tổng lợi nhuận lên tới 8 – 10%/năm.

Ngoài ra, những năm gần đây, quận Long Biên, Hà Nội đang ngày càng được mở rộng và phát triển. Trong đó, các phường Việt Hưng, Phúc Đồng, Sài Đồng, Giang Biên, được xem như tâm điểm mới của quận Long Biên, bởi 2 khu đô thị sinh thái đẳng cấp bậc nhất thủ đô: Vinhomes Riverside và Vinhomes Riverside The Harmony đều nằm tại đây. Chỉ riêng trong năm 2016, đã có đến gần chục khu căn hộ mọc lên tại khu vực này như Eco City Việt Hưng, Valencia Garden, No – 08 Giang Biên hay chuỗi các dự án mang thương hiệu Ruby City của công ty cổ phần Phát Triển Nhà Thăng Long Việt Nam… Trong tương lai, cộng đồng cư dân tại các khu căn hộ này cũng góp phần tạo thành nguồn khách hàng tiềm năng, mang đến lợi nhuận kinh doanh lớn cho chủ sở hữu shophouse The Harmony.

3 loại hình shophouse phát triển

Shophouse Phong Lan

Shophouse Phong Lan nằm trên đường Nguyễn Lam, đối diện với khu căn hộ Sunrise Building. Shophouse Phong Lan có diện tích đất từ 216 – 218 m2, mật độ xây dựng khoảng 45%, chiều cao 3.5 tầng, được thiết kế theo phong cách Pháp, điểm nhấn đến từ mái Mansard đặc trưng kiểu Pháp kết hợp những ô cửa sổ vòm thanh mảnh. Sức hút của dòng sản phẩm đến từ khả năng khai thác kinh doanh vượt trội do nằm trên tuyến đường huyết mạch Nguyễn Lam – Một trong những trục giao thông trọng điểm của khu Sài Đồng. Trong 3 khu shophouse The Harmony, shophouse Phong Lan được đánh giá cao nhất.

Shophouse Hướng Dương

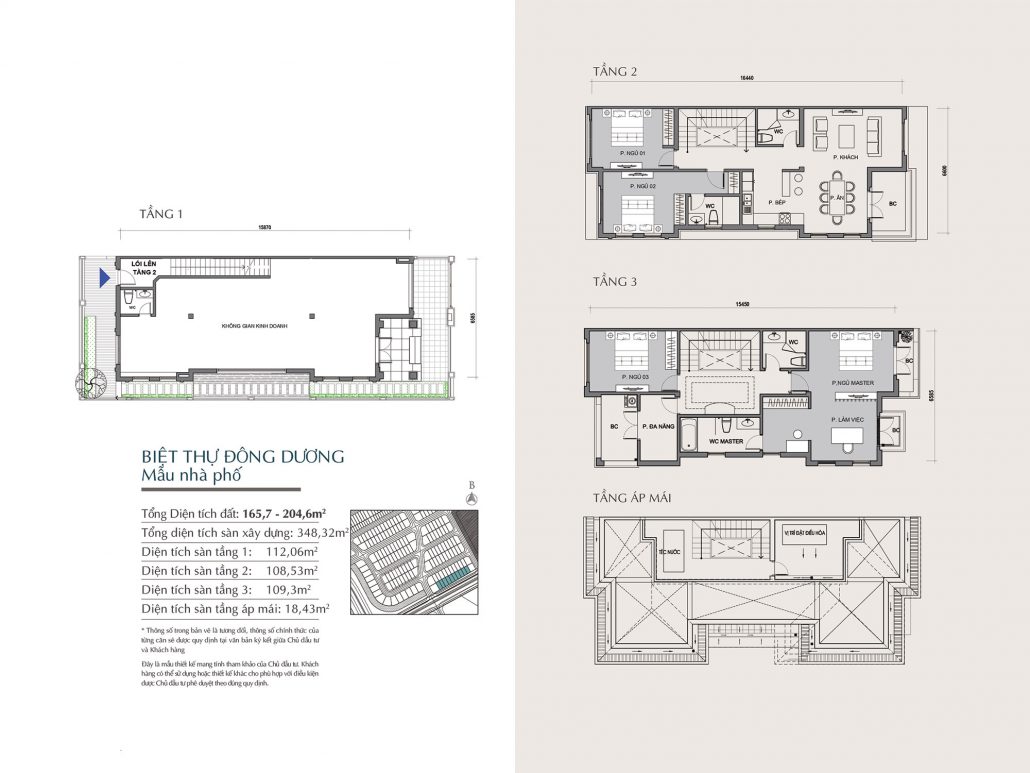
Shophouse Hướng Dương nằm trên đường Huỳnh Văn Nghệ, đối diện với khu dân cư Sài Đồng. Shophouse Hướng Dương có diện tích đất từ 165 – 204 m2, mật độ xây dựng khoảng 45 – 55%, chiều cao 3.5 tầng, được thiết kế theo phong cách Đông Dương, kết hợp giữa những khối nhà cô đọng kiểu Pháp và mái ngói dốc cùng những họa tiết trang trí kiểu Việt Nam. Sức hút của shophouse Hướng Dương đến từ diện tích và giá thành vừa phải, nhưng vẫn đáp ứng tốt khả năng khai thác kinh doanh nhờ thiết kế ưu việt cộng thêm đường Huỳnh Văn Nghệ cũng là một trong những tuyến giao thông huyết mạch tại Sài Đồng.

Shophouse Nguyệt Quế

Shophouse Nguyệt Quế nằm tại vòng xuyến Chu Huy Mân, kế bên khu căn hộ Hope Residences. Shophouse Nguyệt Quế có diện tích đất đang cập nhật, mật độ xây dựng khoảng 50%, chiều cao 3.5 tầng, được thiết kế theo phong cách Hy Lạp tân cổ điển đặc trưng bởi mái đầu hồi kết hợp những hàng cột vành ngoài đan xen bên những ô cửa vuông rộng lớn. Sức hút của shophouse Nguyệt Quế chủ yếu đến từ lợi thế nằm ở vị trí cửa ngõ khu đô thị The Harmony, đồng thời kế cận cả trường học Vinschool lẫn khu căn hộ Hope Residences, nên chủ sở hữu có thể tận dụng nguồn cư dân & khách vãng lai khổng lồ.

Mặt bằng thiết kế shophouse Vinhomes Riverside The Harmony

Giá bán shophouse Vinhomes Riverside The Harmony

  Diện tích đất Mật độ xây dựng Chiều cao Giá bán
Shophouse Phong Lan 216 – 218 m2 45% 3.5 tầng Hết hàng
Shophouse Hướng Dương 165 – 204 m2 50 – 55% 3.5 tầng Hết hàng
Shophouse Nguyệt Quế Đang cập nhật 50% 3.5 tầng Hết hàng

ĐĂNG KÝ TƯ VẤN CHUYÊN SÂU DỰ ÁN

Vui lòng cung cấp thông tin để chúng tôi gửi cho Quý khách trọn bộ tài liệu về dự án