Liền kề Vinhomes Riverside The Harmony

An cư tại khu đô thị Vinhomes Riverside từ lâu đã trở thành ước mơ của nhiều gia đình tại Hà Nội. Tuy nhiên, với giá trị mỗi căn biệt thự lên tới hàng chục tỷ đồng, ngay cả những gia đình có thu nhập mức cao lên tới 100 – 200 Triệu/tháng cũng khó lòng mà mua được. Nắm bắt được điều đó, tại giai đoạn 2 Vinhomes The Harmony, Vingroup đã triển khai xây dựng thêm nhà liền kề, với diện tích đa phần từ 90 – 100 m2, cùng giá bán vô cùng hấp dẫn chỉ từ 8 tỷ.

Tổng quan liền kề Vinhomes Riverside The Harmony

Quy mô phát triển: 563 căn liền kề

  • Liền kề Phong Lan: 44 căn
  • Liền kề Nguyệt Quế: 430 căn
  • Liền kề Tulip: 89 căn

Phong cách xây dựng: Pháp, Hy Lạp, Italia

Diện tích liền kề: 88 – 146 m2

Mật độ xây dựng: 70 – 80%

Chiều cao: 3.5 tầng

Hình thức sở hữu: Sổ đỏ lâu dài

Ưu điểm vượt trội của liền kề The Harmony

Có thể thấy rõ, ưu điểm lớn nhất của liền kề Vinhomes The Harmony là mặc dù diện tích nhỏ hơn khá nhiều so với biệt thự, nhưng số lượng các phòng chức năng vẫn đủ đáp ứng đủ nhu cầu cho cả một đại gia đình 5 – 7 người. Đồng thời, phía trước, phía sau nhà liền kề The Harmony còn có sân vườn + tường rào, chủ sở hữu có thể đặt bàn cafe tận hưởng không gian an lành của khu đô thị, hay trồng cây xanh, tô điểm cho ngôi nhà của mình. Nhà liền kề The Harmony không có garage để xe, tuy nhiên mỗi ngôi nhà đều có vỉa hè rộng lớn, chủ sở hữu hoàn toàn an tâm khi để xe ô tô tại đây. Vinhomes The Harmony có tất cả 3 chốt an ninh: tại cổng vào khu đô thị, tại lối vào từng tiểu khu và tại lối vào từng đoạn đường nội bộ nhỏ. Do vậy, sẽ không bao giờ xảy ra các tình trạng mất trộm, bẻ gương…

Đối với những khách hàng mua để ở, tài chính ở mức vừa phải, nhà liền kề The Harmony là sự lựa chọn vô cùng lý tưởng. Để sở hữu một căn biệt thự Vinhomes Riverside, bạn phải bỏ ra trung bình 20 – 30 tỷ, nhưng đối với nhà liền kề, chỉ từ 8 tỷ bạn đã có thể mua được. Trong khi đó, tiện ích đặc quyền dành cho cư dân biệt thự và cư dân liền kề hoàn toàn không có sự phân biệt. Chưa kể, nhà liền kề The Harmony còn mang lại cơ hội sinh lời vượt trội, bởi tại khu đô thị Vinhomes Riverside có đến hơn 3.000 căn nhà ở thấp tầng, nhưng chỉ có 563 căn nhà liền kề, chiếm chưa tới 20% tổng số sản phẩm. Do vậy, tính thanh khoản cũng như tiềm năng tăng giá của nhà liền kề rất cao, không thua kém so với shophouse The Harmony.

3 loại hình liền kề phát triển

Liền kề Phong Lan

Liền kề Phong Lan nằm trên đường Phong Lan 3 & Phong Lan 5, thuộc tiểu khu Phong Lan. Liền kề Phong Lan có diện tích đất 96 m2, mật độ xây dựng khoảng 80%, chiều cao 3.5 tầng, được thiết kế theo phong cách Pháp, nổi bật bởi những hình khối cô đọng, chắc khỏe, kết hợp cùng hệ mái Mansard đặc trưng & những ô cửa vòm thanh mảnh đặc trưng kiểu Pháp. Điểm nhấn của liền kề Phong Lan còn đến từ vị trí ngay gần kênh sinh thái và khu vườn Châu Âu rộng lớn nằm tại trung tâm tiểu khu Phong Lan, nên cư dân sẽ được thụ hưởng những giá trị sống “resort” đẳng cấp.

Liền kề Nguyệt Quế

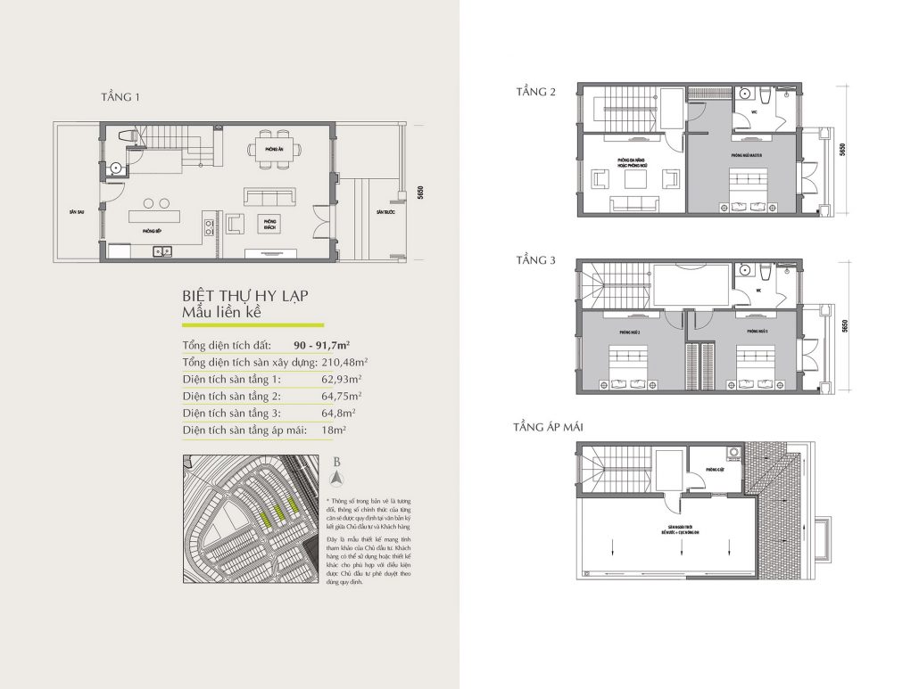
Liền kề Nguyệt Quế nằm bên trong giai đoạn 2 tiểu khu Nguyệt Quế. Liền kề Nguyệt Quế có diện tích từ 88 – 146 m2, mật độ xây dựng 70 – 80%, chiều cao 3.5 tầng, được thiết kế theo kiến trúc Hy Lạp kinh điển, nổi bật bởi mái đầu hồi tam giác, hàng cột vành ngoài công trình được trang trí những họa tiết hình quả trám, mang hơi hướng cổ điển Hy Lạp. Liền kề Nguyệt Quế chiếm tới 80% tổng số liền kề tại khu đô thị Vinhomes The Harmony, đa phần đều nằm gần hồ điều hòa hoặc công viên nội khu, hứa hẹn sẽ mang sự lựa chọn đa dạng và chất lượng tới chủ sở hữu.

Liền kề Tulip

Liền kề Tulip nằm trên đường Tulip 4, Tulip 5, Tulip 7, bên trong tiểu khu Tulip. Liền kề Tulip có diện tích đất từ 90 – 120 m2, mật độ xây dựng 75 – 80%, chiều cao 3.5 tầng, được thiết kế theo phong cách Italia, nổi bật bởi mái ngói tam giác đặc trưng, cửa sổ vòm cuốn, lan can ban công được kết hợp giữa những thanh sắt uốn cong & hàng cột thanh mảnh. Sức hút của liền kề Tulip đến từ vị trí nằm gần hồ điều hòa 8 ha – Trái tim của khu đô thị Vinhomes Riverside The Harmony. Tại đây, cư dân chỉ mất một vài phút đi bộ để thụ hưởng những tiện ích cảnh “resort” đẳng cấp.

Mặt bằng thiết kế liền kề Vinhomes Riverside The Harmony

Giá bán liền kề Vinhomes Riverside The Harmony

  Diện tích đất Mật độ xây dựng Chiều cao Giá bán
Liền kề Phong Lan 96 m2 80% 3.5 tầng Hết hàng
Liền kề Nguyệt Quế 88 – 146 m2 70 – 80% 3.5 tầng Hết hàng
Liền kề Tulip 90 – 120 m2 75 – 80% 3.5 tầng Hết hàng

 

ĐĂNG KÝ TƯ VẤN CHUYÊN SÂU DỰ ÁN

Vui lòng cung cấp thông tin để chúng tôi gửi cho Quý khách trọn bộ tài liệu về dự án