Penthouse & Sky villa Vinhomes Skylake

Tọa lạc trên đỉnh các tòa tháp S2, S3, các căn hộ penthouse & sky villa Vinhomes Skylake với thiết kế thông minh, tối đa không gian tiếp cận thiên nhiên cùng tầm nhìn panorama toàn cảnh công viên hồ điều hòa Cầu Giấy, là nơi hội tụ mọi tinh hoa của chuẩn mực sống thượng lưu đang dẫn đầu xu hướng.

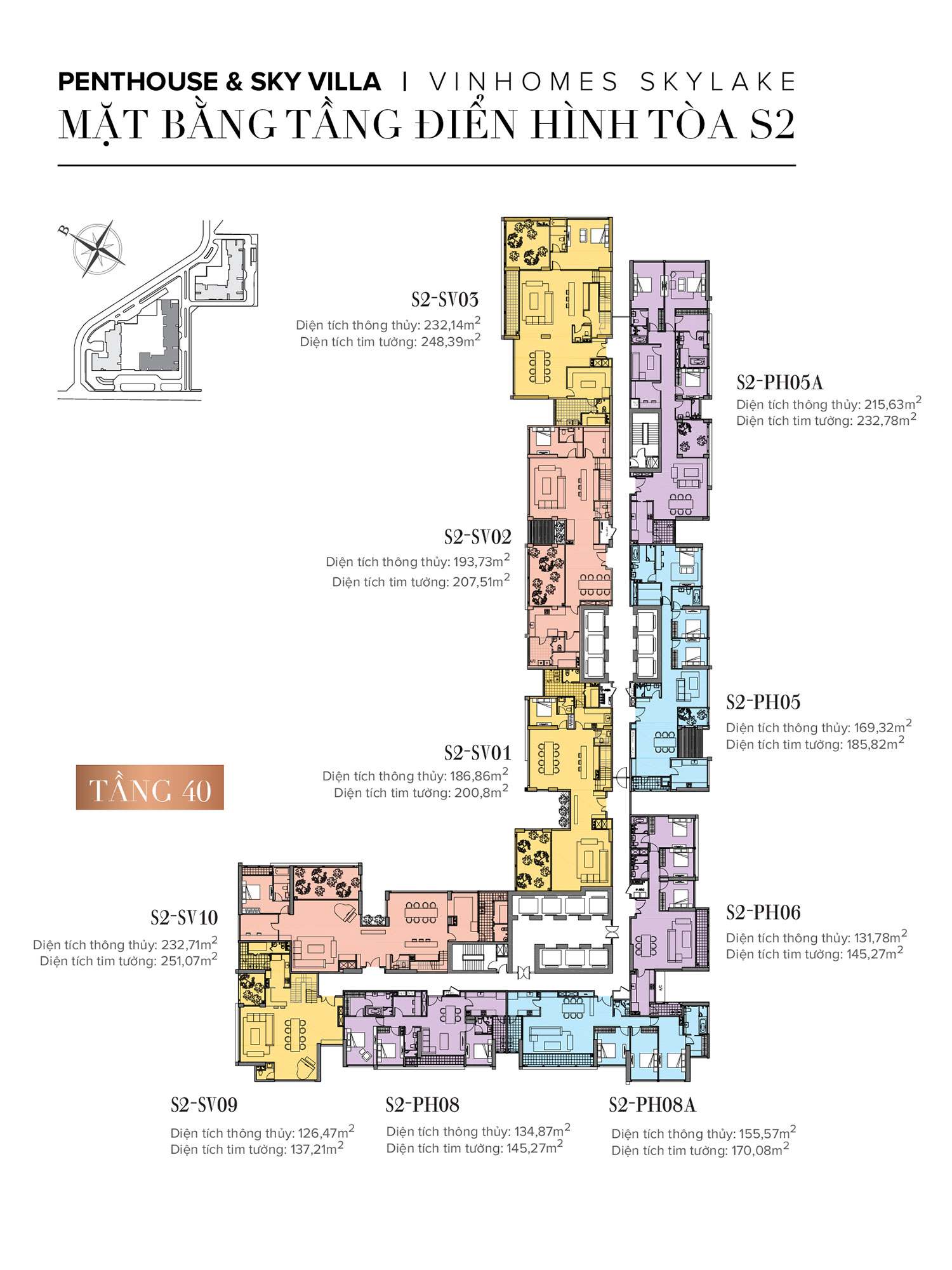
Tổng quan penthouse & sky villa Vinhomes Skylake Phạm Hùng

  Penthouse Sky villa
Số lượng 18 căn 11 căn
Vị trí Tầng 40, 41 tòa S2, S3 Tầng 40, 41 tòa S2, S3
Chiều cao 1 tầng 2 tầng (Có cầu thang bộ bên trong nhà)
Diện tích 141.56 – 232.78 m2 265.23 – 527.43 m2 (Cả 2 tầng)
Giá bán Hết hàng Hết hàng

Chuẩn mực sống thượng lưu đang dẫn đầu xu hướng

Penthouse và sky villa (biệt thự trên không) là các loại hình căn hộ đẳng cấp và đắt giá nhất tại chung cư Vinhomes Skylake Phạm Hùng. Mỗi căn hộ penthouse & sky villa đều sở hữu sân vườn rộng lớn bên trong, vừa giúp những khối kiến trúc hiện đại không bị đơn điệu, vừa là nơi hoàn hảo để tận hưởng cuộc sống “resort” giữa những tầng mây.

Ngoài ra, phòng khách và không gian sinh hoạt chung trong căn hộ penthouse & sky villa được thiết kế rất rộng, có ban công dài lên tới 12 m. Đặc biệt tại các căn hộ sky villa, khu vực phòng khách còn sở hữu cửa kính thông tầng cao tới 7 m, sẽ là nơi tuyệt vời để phóng tầm mắt ra xa, bao quát 2 trong 1 cảnh mây nước giao hòa tại công viên hồ điều hòa Cầu Giấy và trung tâm phía Tây thủ đô đang từng bước chuyển mình.

Có thể nói, 29 căn hộ penthouse & sky villa Vinhomes Skylake là 29 viên kim cương đắt giá, dành riêng cho những người “siêu giàu” tại Hà Nội. Tại penthouse & sky villa Vinhomes Phạm Hùng, mọi chuẩn mực sống thượng lưu đều được đáp ứng trọn vẹn, từ vẻ đẹp hiện đại, đẳng cấp bên trong không gian thiết kế, đến sự yên bình, tự do bên những khu vườn cây xanh rộng lớn ngay trong nhà.

Nhìn chung, tiêu chuẩn để trở thành penthouse & sky villa vô cùng khắt khe. Một căn hộ được gọi là penthouse không chỉ diện tích rộng, nằm trên tầng thượng, mà còn phải có bố cục căn hộ thông thoáng, bên trong có sân vườn, bể bơi, mặt ngoài là kính chạm sàn, và đặc biệt vị trí phải gần hồ, công viên, hoặc ngay giữa trung tâm thành phố… Trong tất cả các dự án của Vingroup tại Hà Nội, penthouse & sky villa chỉ có tại 2 dự án là Vinhomes Phạm Hùng và Vinhomes Liễu Giai.

Mặt bằng thiết kế penthouse & sky villa Vinhomes Skylake

 

ĐĂNG KÝ TƯ VẤN CHUYÊN SÂU DỰ ÁN

Vui lòng cung cấp thông tin để chúng tôi gửi cho Quý khách trọn bộ tài liệu về dự án